Supermarket and shops
Retail


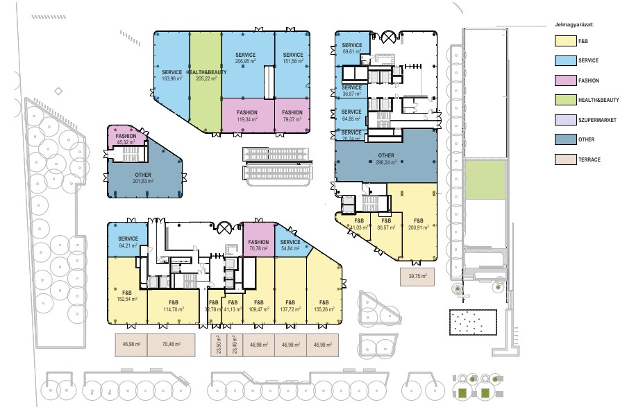
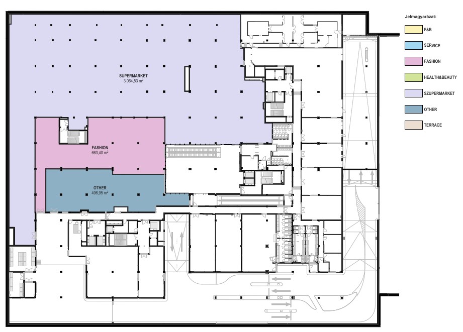
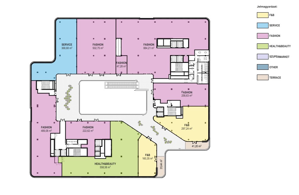
Retail Areas & Data
| Shopping Centre total | Approx. 11.000 sqm |
| Supermarket | 3.000 sqm |
| F & B | 1.500 sqm |
| Fashion | 3.400 sqm |
| Health & Beauty | 800 sqm |
| Service | 2.000 sqm |
| Other | 300 sqm |
Business map




| Shopping Centre total | Approx. 11.000 sqm |
| Supermarket | 3.000 sqm |
| F & B | 1.500 sqm |
| Fashion | 3.400 sqm |
| Health & Beauty | 800 sqm |
| Service | 2.000 sqm |
| Other | 300 sqm |

